722 Cherry StFort Collins, CO 80521
Due to the health concerns created by Coronavirus we are offering personal 1-1 online video walkthough tours where possible.




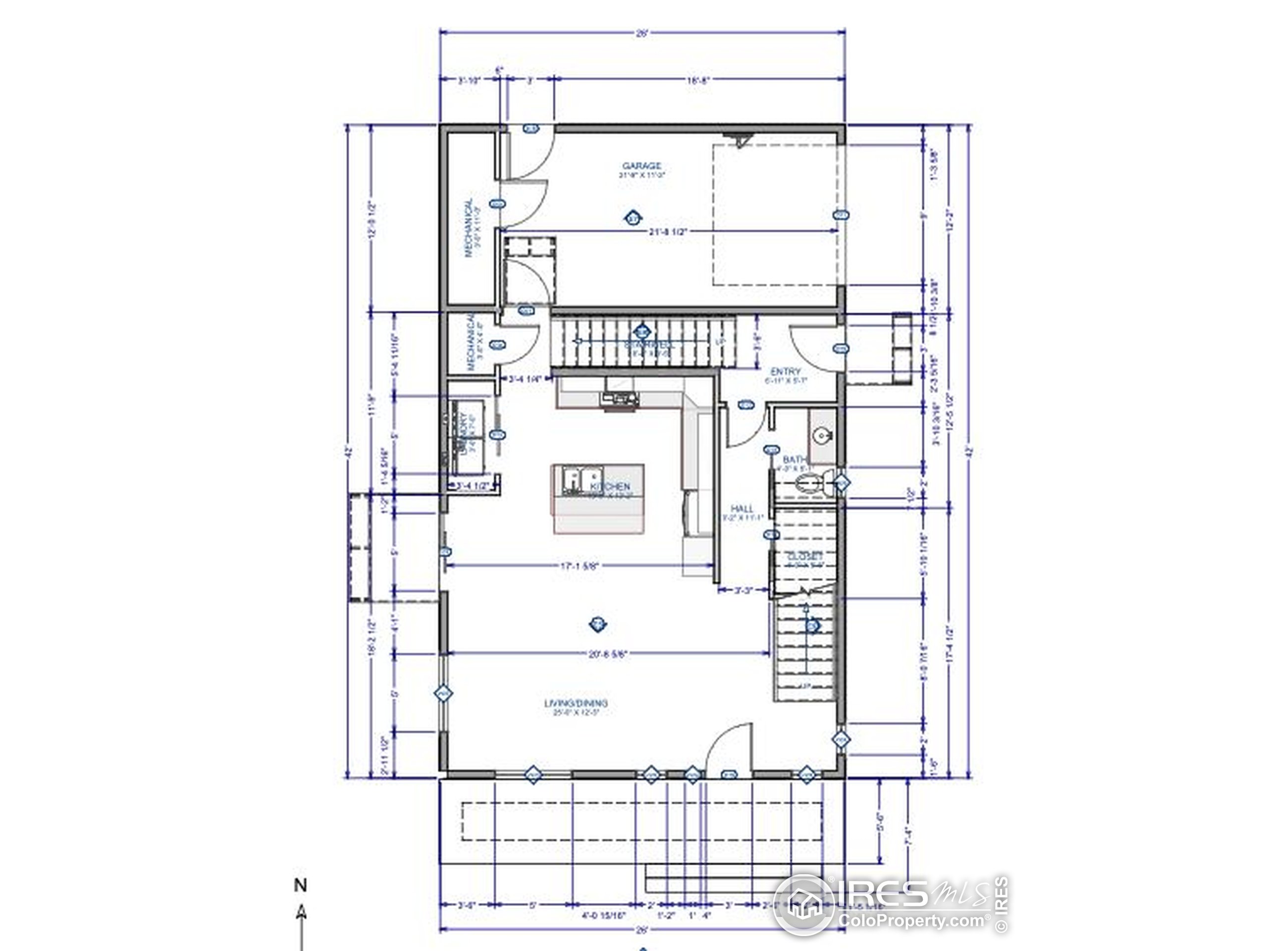
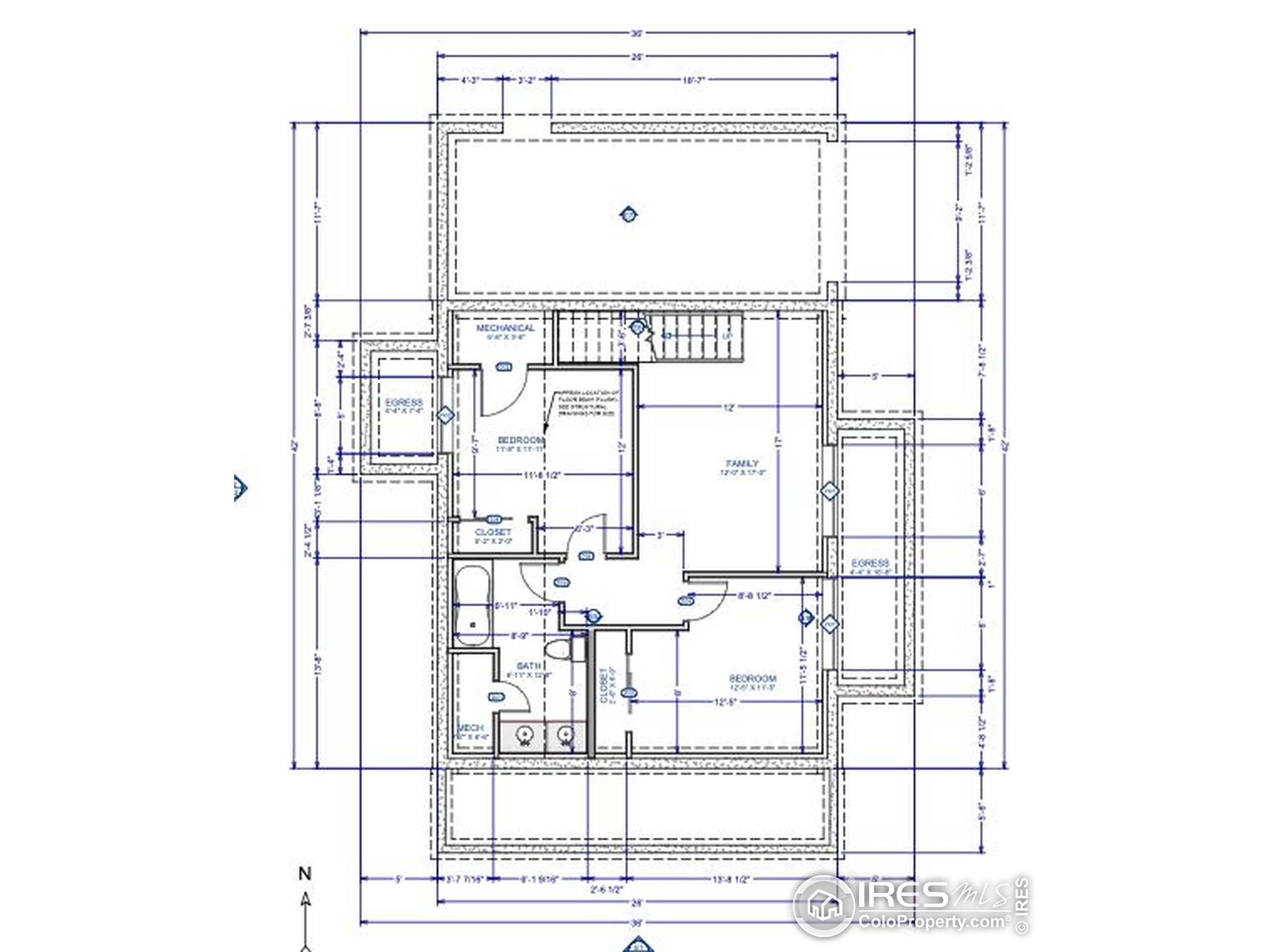
Ready to Build! This vacant lot is available for $350,000. Listed price on the MLS is the estimated cost to complete construction including tap and impact fees - estimates are available for review. Seller prefers to sell vacant lot and is willing to pass along the full set of construction plans, estimates, etc, with an acceptable offer. If you are excited to build new but overwhelmed by the upfront work and long timelines, this property is a great solution. 722 Cherry Street is your turnkey solution. This rare Old Town Fort Collins opportunity comes with over $40,000 of pre-construction work already completed-including development review and zoning approvals, design and engineering plans, utility and grading plans, plus all survey, legal, and recording costs. All setbacks, parking/access, and variances are approved, allowing for a 2,800 sq ft two-story home with an attached private-entry in-law suite. The seller has also obtained utility and capital expansion fee estimates in addition to estimates to install water, sewer, and other utilities. With prime Cherry Street frontage, alley access, and placement in the primary short-term rental zone, the property offers exceptional flexibility. The seller's extensive due diligence will save you 18 months of development review, and you could be picking out finishings and getting ready to move in, in as little as 6-9 months. Step into a streamlined path to building your dream home in one of Fort Collins' most coveted neighborhoods. Don't miss out on generating an estimated $45,000/year in income by short-term renting the separate suite over the garage.
| 2 weeks ago | Listing updated with changes from the MLS® | |
| 3 weeks ago | Status changed to Active | |
| 3 weeks ago | Price changed to $1,250,000 | |
| 3 weeks ago | Listing first seen on site |
Compensation information displayed on listing details is only applicable to other participants and subscribers of the source MLS.
Information source: Information and Real Estate Services, LLC. Information deemed reliable but not guaranteed by the MLS. Listing information is provided exclusively for consumers' personal, non-commercial use and may not be used for any purpose other than to identify prospective properties consumers may be interested in purchasing. Provided for limited non-commercial use only under IRES Rules © Copyright IRES. Digital Millenium Copyright Act
Last checked 2025-12-30 02:48 PM MST.

Did you know? You can invite friends and family to your search. They can join your search, rate and discuss listings with you.